Einfamilienhaus "TURMALINAS"
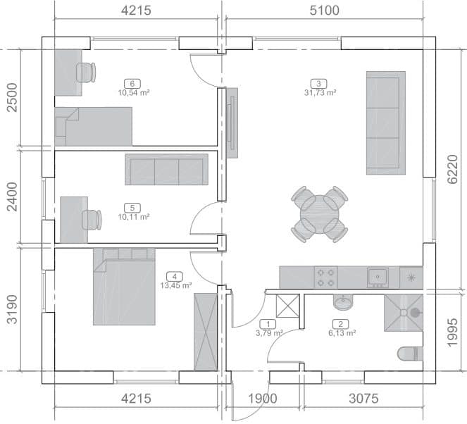
Gemütliches, wirtschaftliches Wohnhaus mit SIP-Rahmen. Das Gebäude ist für eine Familie von 3-4 Personen ausgelegt. Das Haus hat ein Stockwerk.
Gemütliches, wirtschaftliches Wohnhaus mit SIP-Rahmen. Das Gebäude ist für eine Familie von 3-4 Personen ausgelegt. Das Haus hat ein Stockwerk.