Einfamilienhaus
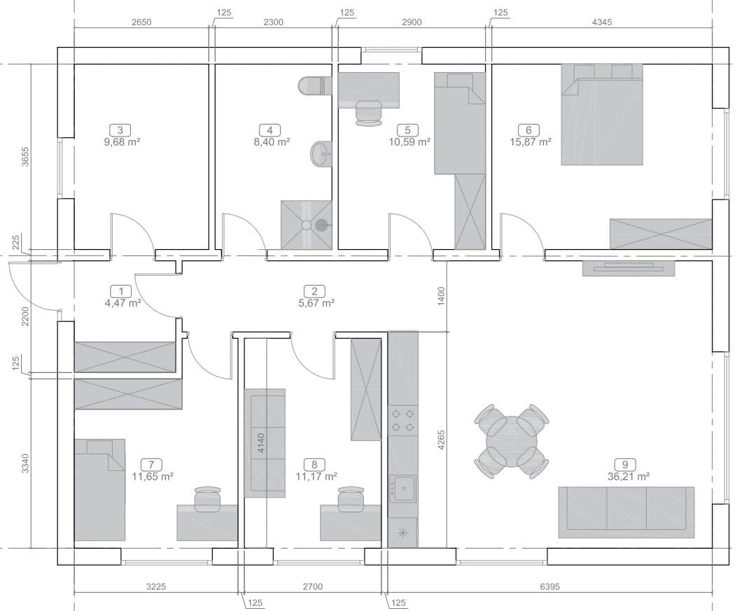
Gemütliches, wirtschaftliches, Wohnhaus mit SIP-Rahmen. Das Gebäude ist für eine Familie von 3-5 Personen ausgelegt. Das Haus hat ein Stockwerk.
Gemütliches, wirtschaftliches, Wohnhaus mit SIP-Rahmen. Das Gebäude ist für eine Familie von 3-5 Personen ausgelegt. Das Haus hat ein Stockwerk.