Einfamilienhaus "AMETISTAS"
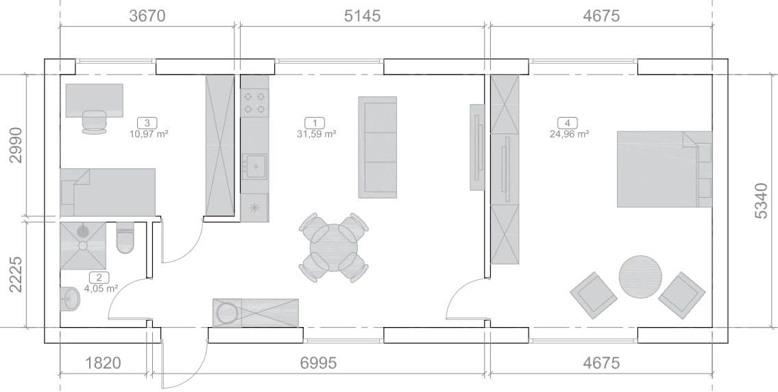
Gemütliches, wirtschaftliches, Haus mit SIP-Rahmen für Wohnzwecke. Das Gebäude ist für eine Familie von 3-4 Personen ausgelegt. Das Haus hat eine Etage.
Gemütliches, wirtschaftliches, Haus mit SIP-Rahmen für Wohnzwecke. Das Gebäude ist für eine Familie von 3-4 Personen ausgelegt. Das Haus hat eine Etage.